CLEVELAND — An almost $20 million project will turn the former West Side YWCA and home for people with developmental disabilities into 38 apartments.
The Dalad Group’s Andrew Iarussi told the Cleveland Landmarks Commission on August 26 that the apartments would be geared towards the middle of the rental market as long as the group could get the proper financing to make the project pencil out.
“That is our hope and our desire for this project but it does not work unless we can find a way to get financing sources that are structured to incentivize people to do that,” said Iarussi. “Agencies that have terms on financing that encourage you to do that by giving you better terms than conventional financing.”
The Future
The project already secured $1,984,882 in historic tax credits for the $19,868,668 project.
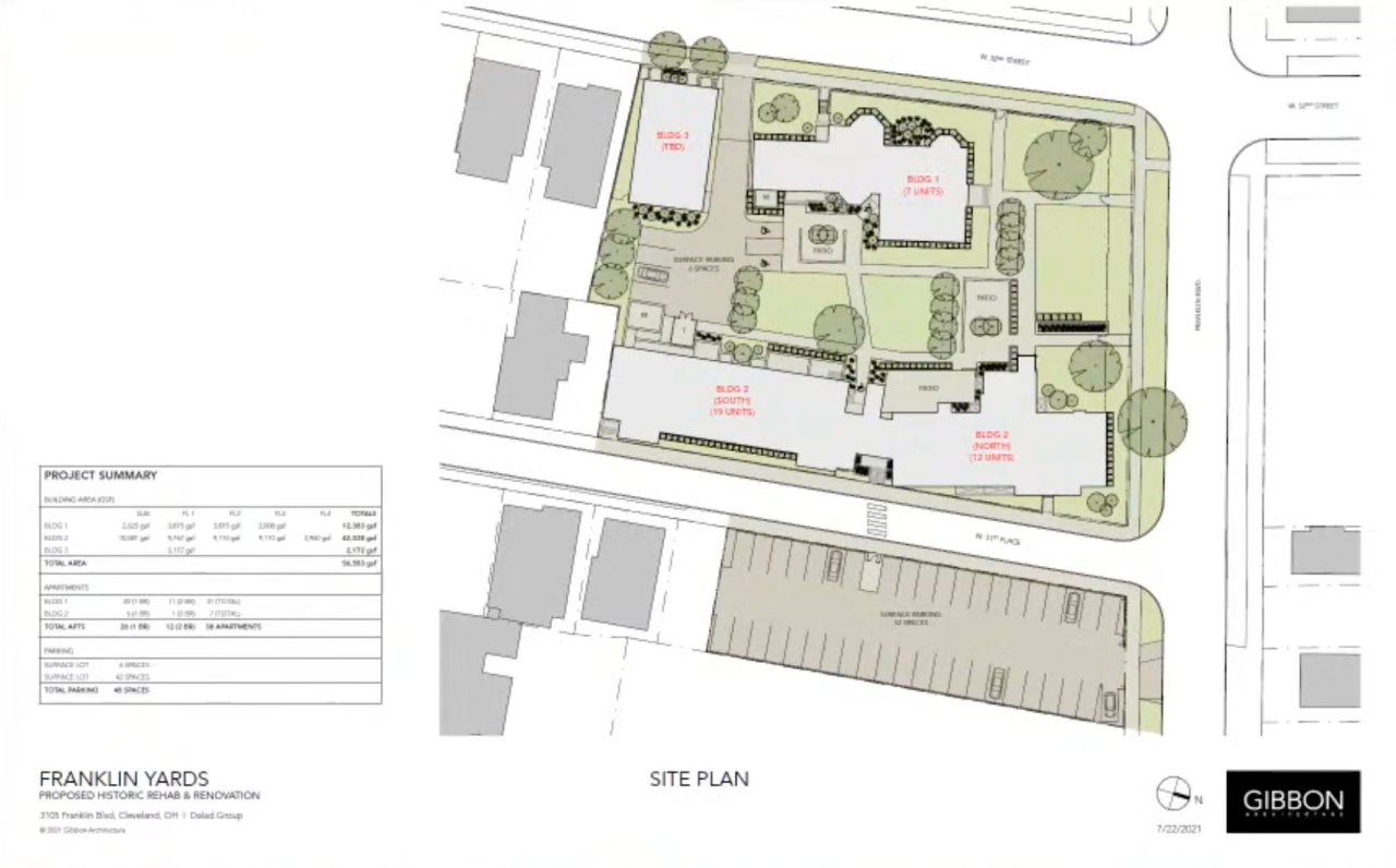
Iarussi told the Commission that means the project will replace damaged stone work, rotted windows, and brick work.
A former YWCA dorm building along West 31st Street will hold 31 of the apartment units, with the remaining seven being in the former mansion still standing on the corner of West 32st and Franklin.

Parking for the units will be available across West 31st Street in an existing parking lot that Iarussi says will get some additional landscaping to make it look more attractive from the road.
This comes as Franklin Boulevard running past the property is due for a large facelift. At first, the proposed changes from the City of Cleveland faced pushback from the Ohio City community from people who thought it didn’t go far enough.
A tweet from Councilmember Jenny Spencer in August shows that both she and fellow Councilmember Kerry McCormack were able to get the initial proposal updated to better reflect what the community wants from that project and it’s due to start in April 2022.
Ordinance No. 298-2021, which was held on two prior occasions, was approved today by a vote of @CleCityCouncil and supported by Councilman @KerryMcCormack1 and me. Please read our full statement below. pic.twitter.com/U02G4nHw9s
— Jenny Spencer (@jennyspencercle) August 18, 2021
The Past
In 1913, a caption in the Cleveland Public Library Photograph Collection says the YWCA bought two mansions near the corner of Franklin Boulevard and West 32nd Street: the Coffinberry House and the Cook-Bousfield mansion, according to FreshWater.

The Coffinberry House was eventually demolished to make way for a dormitory building. The Cook-Bousfield mansion is still part of the property and will be converted into seven apartments.
By end of the 1920’s, Cleveland Public Library records show the corner of Franklin Boulevard and West 32nd was a busy corner in Ohio City, with the West Side YMCA on the northwest corner, the Franklin Boulevard Methodist-Episcopal Church on the northeast corner, the YWCA on the south east corner, and the Fairview Park Hospital on the southwest corner.

Have you ever noticed something interesting in Northeast Ohio and wondered, “Hey…what’s going on there?”
Us, too. We love learning more about what shapes the world around us -- the buildings, the spaces and the ways we move between them.
Next time you're wondering about some building, project or piece of land, send me an email at Kevin.Barry@wews.com and I'll look into it for a possible story.
Download the News 5 Cleveland app now for more stories from us, plus alerts on major news, the latest weather forecast, traffic information and much more. Download now on your Apple device here, and your Android device here.
You can also catch News 5 Cleveland on Roku, Apple TV, Amazon Fire TV, YouTube TV, DIRECTV NOW, Hulu Live and more. We're also on Amazon Alexa devices. Learn more about our streaming options here.