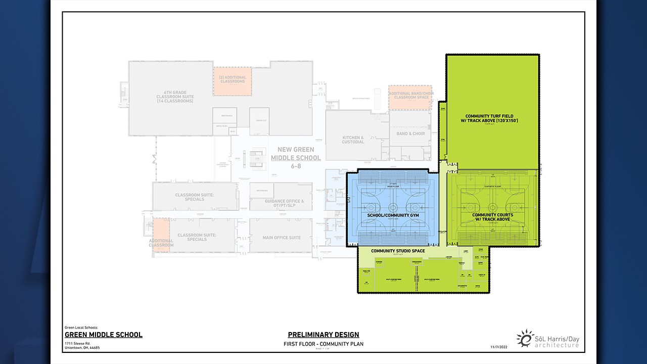
Green City Council has just approved a "Community Courts" construction project that will provide the residents with a new facility that includes a walking track, studio space for yoga, fitness and dance, and a multi-purpose turf field.

The project features the following:
- Courts. Two (2) full-sized basketball courts with bleachers, which convert to four (4) full-size courts when bleachers are retracted
- Indoor Turf Field. A 120 ft x 150 ft turf field for City adult and youth recreation, parks programming, and sports training
- Studio Space. For dance, fitness, and yoga classes
- Walking track. An elevated (7.5 laps = 1 mile) walking track above the community court space
- Restrooms and individual changing rooms.
- Secure school and community space

Council approved a $14.9 million bond issuance at its meeting on Tuesday. The 53,415-square-foot facility will be used by the city and the school district. It was designed by Sol Harris Day Architects.
It will be built as part of the new middle school, behind the Green Intermediate School and next to Central Park.

“The Community Courts will add so much more recreational space to our already robust park system, providing year-long fitness opportunities for residents of all ages, from toddlers through seniors,” said Green Mayor Gerard Neugebauer.
The project was initially proposed last year during the mayor's State of the City address. Voters approved the bond issue in May 2022, and design work was implemented to create a building that could be used by the school district and residents.
Designs were also created for buildings that would replace some of the city's oldest school buildings with new middle school and primary school buildings. Those designs were shown to the public in November 2022 and approved by the city council the following month.

The city said the plan to have the facility built at the school will allow the district to "prioritize levy funds for classroom and instructional space, while city resources are used to create the activity space needed for the new school and the overall community," saving residents $3-4 million.

Next year, the city said it will use its Parks and Recreation Capitol fund to repay debt from the bond issue. The fund receives 7% of the city's income tax revenue. Around $750,000 will be used annually from the fund for the next 25 years to "cover a substantial portion of the debt payments for the Community Courts," something that "would not have been possible without the foresight of our city founders to designate a significant portion of income tax revenues to develop our parks and recreational facilities," the city said.
Construction is expected to start sometime this year.
CLICK HERE for more information.
Watch live and local news any time:
Download the News 5 Cleveland app now for more stories from us, plus alerts on major news, the latest weather forecast, traffic information and much more. Download now on your Apple device here, and your Android device here.
You can also catch News 5 Cleveland on Roku, Apple TV, Amazon Fire TV, YouTube TV, DIRECTV NOW, Hulu Live and more. We're also on Amazon Alexa devices. Learn more about our streaming options here.